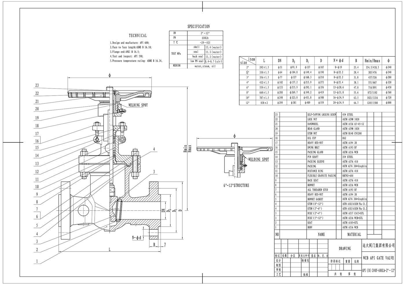
Overall Dimensions and Connection Dimensions of American Standard ANSI API Gate Valve Z541-600LB
| Model | Nominal Diameter | Size | ||||||||||
|---|---|---|---|---|---|---|---|---|---|---|---|---|
| in | DN | L | D | D1 | D2 | b-f | Z-Φd | H max | H min | D 0 | ||
| Z541-600LB | 2” | 51 | 292 | 165 | 127 | 92.1 | 25.4-7 | 8-Φ19 | 418.5 | 354.5 | 240 | |
| 2 1/2" | 64 | 330 | 190 | 149.2 | 104.8 | 28.6-7 | 8-Φ22.2 | 476 | 385 | 240 | ||
| 3" | 77 | 356 | 213 | 168.3 | 127 | 31.8-7 | 8-Φ22.2 | 526 | 437 | 280 | ||
| 4" | 102 | 432 | 275 | 215.9 | 157.2 | 38.1-7 | 8-Φ25.4 | 667 | 551 | 320 | ||
| 6" | 153 | 559 | 355 | 292.1 | 185.7 | 47.7-7 | 12-Φ28.6 | 893 | 718 | 450 | ||
| 8" | 200 | 660 | 420 | 349.2 | 269.9 | 55.6-7 | 12-Φ31.8 | 1105 | 875 | 560 | ||
| 10" | 248 | 787 | 510 | 431.8 | 323.8 | 63.5-7 | 16-Φ34.9 | 1316 | 1021 | 720 | ||
| 12" | 299 | 838 | 560 | 489 | 381 | 66.7-7 | 20-Φ34.9 | -- | -- | -- | ||
| 14" | 327 | 889 | 605 | 527 | 412.8 | 69.9-7 | 20-Φ38.1 | -- | -- | -- | ||
| 16" | 375 | 991 | 685 | 603.2 | 469.9 | 76.2-7 | 20-Φ41.3 | -- | -- | -- | ||
| 18" | 419 | 1092 | 745 | 654 | 533.4 | 82.6-7 | 24-Φ44.5 | -- | -- | -- | ||
| 20" | 464 | 1194 | 815 | 723.9 | 584.2 | 88.9-7 | 24-Φ44.5 | -- | -- | -- | ||
| 24" | 559 | 1397 | 940 | 838.2 | 692.2 | 101.6-7 | 24-Φ50.8 | -- | -- | -- | ||
Overall Dimensions and Connection Dimensions of American Standard ANSI API Gate Valve Z541-900LB
| Model | Nominal Diameter | Size | ||||||||||
|---|---|---|---|---|---|---|---|---|---|---|---|---|
| in | DN | L | D | D1 | D2 | b-f | Z-Φd | H max | H min | D 0 | ||
| Z541-900LB | 2" | 48 | 368 | 215 | 164.4 | 92.1 | 38.1-7 | 8-Φ25.4 | 485 | 432 | 280 | |
| 3" | 73 | 381 | 240 | 190.5 | 127 | 38.1-7 | 8-Φ25.4 | 597 | 514 | 320 | ||
| 4" | 98.3 | 457 | 290 | 235 | 157.2 | 44.5-7 | 8-Φ31.8 | 684 | 570 | 360 | ||
| 6" | 146.1 | 610 | 380 | 317.5 | 215.9 | 55.6-7 | 12-Φ31.8 | -- | -- | -- | ||
| 8" | 191 | 737 | 470 | 393.7 | 269.9 | 63.5-7 | 12-Φ38.1 | -- | -- | -- | ||
| 10" | 238 | 838 | 545 | 469.9 | 323.8 | 69.9-7 | 16-Φ38.1 | -- | -- | -- | ||
| 12" | 282.4 | 965 | 610 | 533.4 | 381 | 79.4-7 | 20-Φ38.1 | -- | -- | -- | ||
Performance Specifications
| Model | Nominal Pressure (Mpa) | Test Pressure (Mpa) | Applicable Temperature (℃) | Applicable Medium | |
|---|---|---|---|---|---|
| Z541-600LB(C) | 11.0 | 15.4 | 11.3 | -29~425°C | Water, Steam, Oil Products |
| Z541-900LB(C) | 15.0 | 23 | 16.9 | -29~425°C | Water, Steam, Oil Products |
Main Parts Material
| Part Name | Material |
|---|---|
| Valve Body | ASTM A216 WCB |
| Valve Seat | ASTM A105 |
| Valve Disc | ASTM A217 CA15/ASTM A216 WCB |
| Valve Cover | ASTM A216 WCB |
| Valve Stem | ASTM A276 T410 |
| Valve Stem Nut | ASTM A439 D-2 |
| Handwheel | ASTM A536 65-45-12 |
API(B)Z40Y-600Lb-2-12 inch Assembly Drawing
